LFY/LQFY型立式廢氣鍋爐

- WZY型臥式螺紋管組合鍋爐
- WZY型鍋爐是焊接式高性能臥式螺紋管組合鍋爐。

- LSK型立式針形管鍋爐
- LSK型立式針形管鍋爐裝船后經過長期遠洋運行安全可靠,符合國際海洋安全環保公約管理規定,滿足無人機艙管理需求,得到船東的好評多年來該型鍋爐裝船數千臺運行良好,設計合理,使用安全可靠,自動化程度高,操作方便,壽命長,

- LFK0.5-5.0t/h型針形管/鰭片管廢氣經濟器
- 廢氣經濟器在船舶航行中充分利用柴油機煙氣熱量,具有節能環保等優點。廢氣經濟器采用了針形管/鰭片管結構,擴展了受熱面,吸熱量大,熱效率高,重量輕,應用范圍廣。
產品描述:
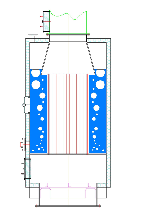
LFY型鍋爐為焊接式的立式煙管(螺紋管或光管)廢氣鍋爐.LFY型鍋爐是自帶有蒸汽空間的自然循環立式煙管廢氣鍋爐,無需循環泵。
產品特點:
煙管處于正常水位以下,避免了爐管冷態時在水位附近因濕氣引起的氧化腐蝕及運行時的溫度和應力的變化引起的腐蝕。
鍋爐上有清理門和下部的灰水排放管,用水洗很方便。
緊急時可干燥運行。
產品優勢:
1、LFY立式煙管廢氣鍋爐可按主機廢氣的數據及蒸發量要求進行設計。
2、鍋爐具體尺寸、管口方位可按用戶實際需求進行設計
產品參數:
|
型號規格 |
受熱面積 |
設計壓力 |
外形尺寸(mm) |
鍋爐重量 |
水容積 |
|||
|
|
M2 |
MPa |
H |
H1 |
D |
D1 |
Kg |
M3 |
|
LFY20-0.7 |
8.3 |
0.9 |
3325 |
825 |
1150 |
200 |
2300 |
1.4 |
|
LFY35-0.7 |
12.8 |
0.9 |
3370 |
870 |
1250 |
200 |
2740 |
1.7 |
|
LFY67-0.7 |
14.8 |
0.9 |
3670 |
970 |
1450 |
250 |
3700 |
2.6 |
|
LFY75-0.7 |
20.3 |
0.9 |
3876 |
1010 |
1550 |
300 |
4400 |
3.1 |
|
LFY110-0.7 |
23.7 |
0.9 |
4082 |
1050 |
1650 |
350 |
5300 |
3.8 |
|
LFY150-0.7 |
27.3 |
0.9 |
4250 |
1100 |
1800 |
380 |
6100 |
4.5 |
|
LFY220-0.7 |
32.2 |
0.9 |
4431 |
1160 |
2050 |
400 |
7200 |
5.4 |
表中各數據僅供參考,本公司保留修改之權利
整體產品圖片:

細節圖表現:

工藝流程:

?
![]()
青島凱能環保科技股份有限公司位于青島膠州市,是國內專業化生產礦熱爐余熱鍋爐、電廠低溫省煤器、發電機組余熱鍋爐的高新技術企業;公司主要生產制造煙氣余熱鍋爐、低溫省煤器、燃油燃氣鍋爐、針形管、H型鰭片管、船用鍋爐及各類壓力容器等節能環保產品。
公司具有A級鍋爐制造資質,D1、D2級壓力容器設計、制造資質。并已取得法國BV的ISO9001:2015質量管理體系證書、ISO14001:2015環境管理體系認證和
ISO45001:2018職業健康管理體系認證,并已獲得美國ABS、法國BV、挪威DNV、英國LR、德國GL和中國CCS等多家船級社的工廠認可。
公司擁有近20項實用新型專利和發明專利。其中公司的針型鰭片管余熱鍋爐獲山東省重點節能技術、產品和設備推廣目錄、青
島市重點節能技術、產品和設備推廣目錄;針形管余熱鍋爐于2011年獲國家科技部中小企業技術創新基金立項,并已通過驗收和十一五國家科技支撐計劃“沼氣發電熱電聯供成套機組產組產業化與工程示范”。公司于2014年取得“青島市傳熱強化節能能裝備專家工作站”、“企業技術中心”、“工程研究中心”、“山東節能環保示范企業”“青島市專精特新示范企業”等榮譽稱號。
公司20余年專業化生產針形管、H型鰭片管強化換熱元件和余熱鍋爐等節能環保設備,現有職工230余人,其中工程技術人員50余人;公司占地面積約73000m2,各種生產設備300余臺套,其中針形管專用焊接生產線10條,H型鰭片管專用焊接生產線12條,年產針形管強化傳熱元件3600余噸,H型鰭片管強化傳熱元件8500余噸。已生產各類針形管、H型鰭片管余熱鍋爐及各類壓力容器12000余臺套。公司20年一直致力于余熱利用行業,是專業的余熱鍋爐
制造商,余熱鍋爐行業杰出企業。
青島凱能環保科技股份有限公司自主研發針形管強化換熱元件,凱能余熱鍋爐采用針形管強化換熱元件增加換熱面積6-8倍,提高傳熱系數約2倍,從而提高傳熱效率約14倍以上。凱能針形管具有結構緊湊、熱效率高、設備投資少的優點,又具有耐震消音、防止積灰、耐磨損、壽命長,安全可靠的特性。
青島凱能環保科技股份有限公司具有與產品制造相適應的技術力量、完善的工藝裝備和檢測手段,已建立完善的質量保
證體系和生產工藝。依托自身強大的研發團隊,通過對國內外換熱元件的研究,不斷推出各種系列的余熱回收產品,2013年凱能品牌取得“山東省著名商標”“青島市著名商標”等榮譽稱號。
公司與西安交通大學、山東大學、清華大學、大連理工大學、陜西科技大學等高等院校科研院所技術合作,進行“產學研”結合,擁有強大的余熱利用自主設計研發能力。2013年公司與西安交通大學聯合成立“鍋爐傳熱元
件焊接裝備研究所”、“傳熱強化及過程節能裝備研發中心”。
公司可按照相關國家和企業標準,針對客戶要求設計、制造滿足用戶特殊需求的各種針形管、H型鰭片管系列余熱鍋爐產品。
公司成立至今,先后為近百家電廠的1000多臺不同類型燃料的發電機組進行了余熱利用和改造。取得了顯著的節能效果,為客戶帶來了可觀的經濟效益。
公司產品銷往全國30多個省市自治區,與華電、國電、華能、大唐和中電投等五大電力公司以及大慶油田、勝利油田、華北油田、大港油田等建立了密切的合作關系,產品在燃煤電廠、鐵合金、油田、焦化廠、煤礦、燃油燃氣及沼氣站得到了廣泛的應用,并出口俄羅斯、日本、法國、北歐等國家和地區。
![]()
|
青島凱能環保科技股份有限公司 |
相關資訊
| 我要評論: | |
| *內 容: |
(內容最多500個漢字,1000個字符) |
| *驗證碼: | 看不清?! |








魯公網安備 37028102000404號
共有-條評論【我要評論】